16515 Red Tailed Hawk DriveWestfield, IN 46074




Mortgage Calculator
Monthly Payment (Est.)
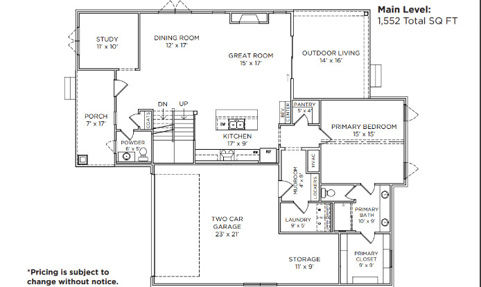
$4,331Discover this stunning new home by Old Town Design Group, now under construction! The Hawthorn, one of Old Town's most popular floor plans, is a perfect blend of intelligent design and modern functionality. The heart of this home is the spacious, open-concept main floor. The kitchen, great room, and dining room flow seamlessly together, creating an ideal gathering space for entertaining and daily life. Here you'll find designer selected finishes: black hardwood cabinets selected for the kitchen's uppers, lowers, island and beverage center, 3 CM quartz countertops, stainless steel appliances, tiled backsplash, and modern lighting. The main-level primary bedroom provides a tranquil retreat, complete with a cathedral ceiling accented by a stained beam. The attached bathroom features a shower with floor-to-ceiling tile walls and a tile mud pan, double sinks and connects to a large WIC. Around the corner, and located off the functional mudroom (adorned with built-in lockers) is the laundry room with white hardwood upper cabinets. Need a little space? This home offers multiple finished gathering areas across all three levels, including a main-level office, 2 upper level bedrooms, loft space (perfect for a reading nook), a large basement family room space, and a fourth bedroom/full bath -ideal for a guest suite or an additional secluded office space. This home, built on a corner lot, boasts an oversized two-car garage with a large storage space. If that's not enough, this home also has 20x33' worth of unfinished space in the basement. The Springwater community is a tranquil, wooded neighborhood, just a 5-minute bike ride away from Downtown Westfield, which has so much to offer!
| 4 months ago | Listing first seen on site | |
| 4 months ago | Listing updated with changes from the MLS® |
Listings courtesy of Metropolitan Indianapolis Board of REALTORS® as distributed by MLS GRID. All information is provided exclusively for consumers’ personal, non-commercial use, and may not be used for any purpose other than to identify prospective properties that a consumer may be interested in purchasing. All information is believed to be reliable but is not guaranteed and should be independently verified.
Based on information submitted to the MLS GRID as of 2026-01-29 01:15 AM UTC. All data is obtained from various sources and may not have been verified by broker or MLS GRID. Supplied Open House Information is subject to change without notice. All information should be independently reviewed and verified for accuracy. Properties may or may not be listed by the office/agent presenting the information.
Copyright © 2026 Metropolitan Indianapolis Board of REALTORS®. All rights reserved.


Did you know? You can invite friends and family to your search. They can join your search, rate and discuss listings with you.